Vivienda Unifamiliar entre medianeras (Brenes)

Facebook
Twitter
LinkedIn

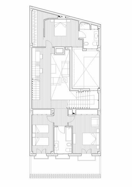
Proyecto de vivienda unifamiliar entre medianeras en la que el espacio contínuo del salón actúa como elemento central del diseño de la misma.

div style=»clear: both; text-align: center;»>Estudio Honorio Aguilar - Vivienda Unifamiliar, Brenes (Sevilla)

 

Estudio Honorio Aguilar - Vivienda Unifamiliar, Brenes (Sevilla)

 

Estudio Honorio Aguilar - Vivienda Unifamiliar, Brenes (Sevilla)
Resumen de privacidad
Estudio de Arquitectura Honorio Aguilar

Esta web utiliza cookies para que podamos ofrecerte la mejor experiencia de usuario posible. La información de las cookies se almacena en tu navegador y realiza funciones tales como reconocerte cuando vuelves a nuestra web o ayudar a nuestro equipo a comprender qué secciones de la web encuentras más interesantes y útiles.

Cookies estrictamente necesarias

Las cookies estrictamente necesarias tiene que activarse siempre para que podamos guardar tus preferencias de ajustes de cookies.

Cookies de terceros

Esta web utiliza Google Analytics para recopilar información anónima tal como el número de visitantes del sitio, o las páginas más populares.

Dejar esta cookie activa nos permite mejorar nuestra web.