Vivienda Unifamiliar en La Rinconada

Facebook
Twitter
LinkedIn
Vivienda Unifamiliar en La Rinconada - Estudio Honorio Aguilar

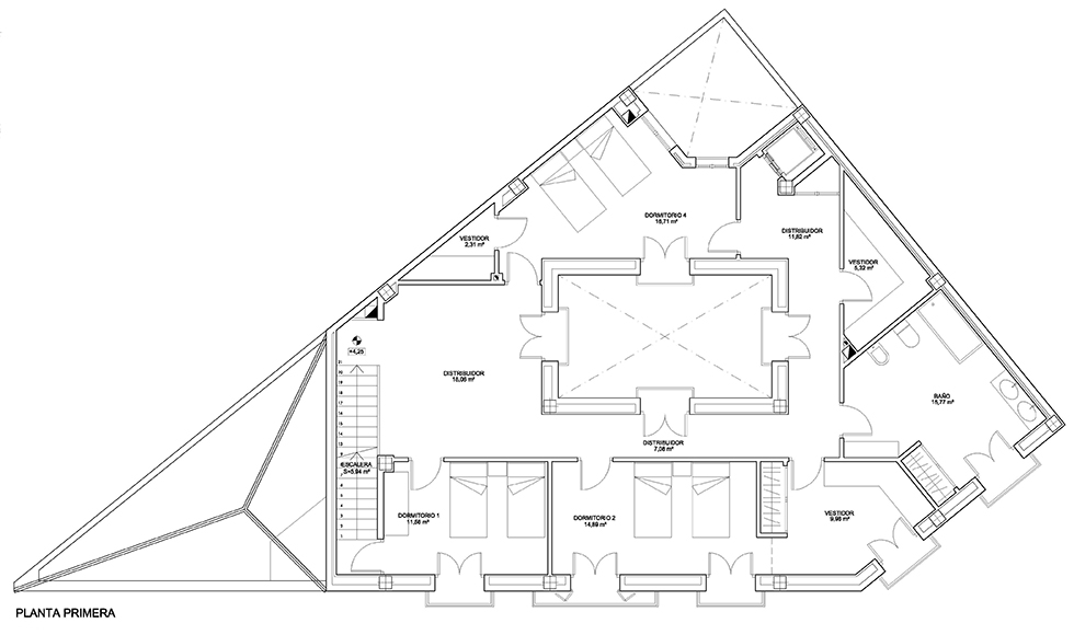
Planos para la construcción de una vivienda unifamiliar que Estudio Honorio Aguilar ha proyectado para su ejecución en la localidad sevillana de La Rinconada.

Vivienda Unifamiliar en La Rinconada - Estudio Honorio AguilarVivienda Unifamiliar en La Rinconada - Estudio Honorio AguilarVivienda Unifamiliar en La Rinconada - Estudio Honorio AguilarVivienda Unifamiliar en La Rinconada - Estudio Honorio Aguilar

Resumen de privacidad
Estudio de Arquitectura Honorio Aguilar

Esta web utiliza cookies para que podamos ofrecerte la mejor experiencia de usuario posible. La información de las cookies se almacena en tu navegador y realiza funciones tales como reconocerte cuando vuelves a nuestra web o ayudar a nuestro equipo a comprender qué secciones de la web encuentras más interesantes y útiles.

Cookies estrictamente necesarias

Las cookies estrictamente necesarias tiene que activarse siempre para que podamos guardar tus preferencias de ajustes de cookies.

Cookies de terceros

Esta web utiliza Google Analytics para recopilar información anónima tal como el número de visitantes del sitio, o las páginas más populares.

Dejar esta cookie activa nos permite mejorar nuestra web.