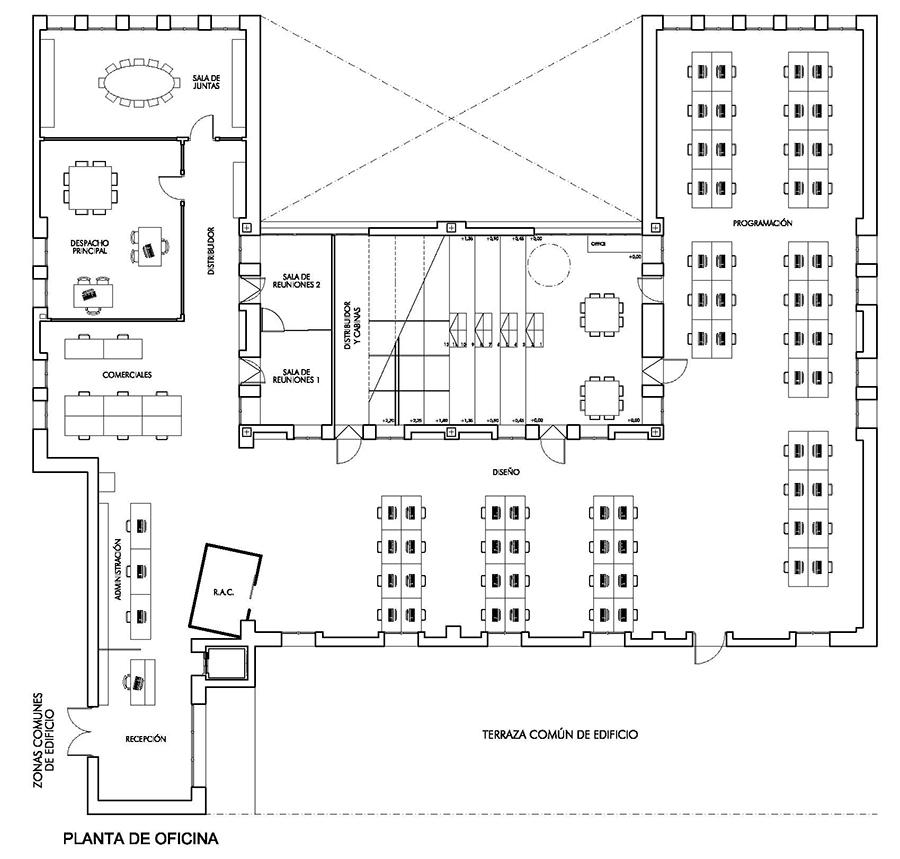
Diseño de las oficinas de la empresa tecnológica S-Dos en Sevilla y ampliación de la misma mediante ocupación de espacio central para uso sala de reuniones y zona de esparcimiento de los empleados.
Este último espacio, se concibe como un graderío de madera que parte de la cota cero donde se halla el oficce y va ganado altura permitiendo crear un espacio multifuncional: extensión del oficce, graderío como aula de formación y proyecciones, espacio de relación, etc.








