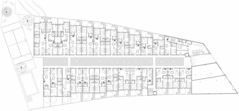
El conjunto de los apartamentos turísticos se ha realizado creando un patio central en cuyo espacio se proyectan las zonas de tránsito de personas para el acceso a las distintas unidades. El acceso a este espacio se consigue a través de la fachada principal del conjunto, compartida con el hotel de cuatro estrellas proyectado en la zona de fachada.








