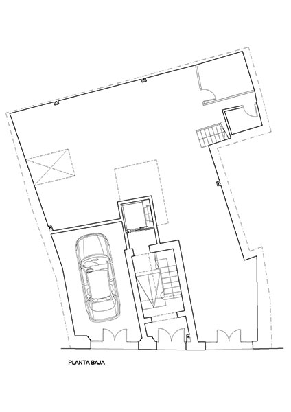
Andaluz cien por cien, es el lema de todos los que hemos participado en este proyecto de viviendas en el centro de Sevilla, edificio de apartamentos en los que se han mantenido los forjados y pilares metálicos originales, muros de fabrica, cerámicas o hidráulicos reutilizados.



Rehabilitación de edificio de 5 viviendas, local en planta baja y garaje en Centro Histórico de Sevilla.










